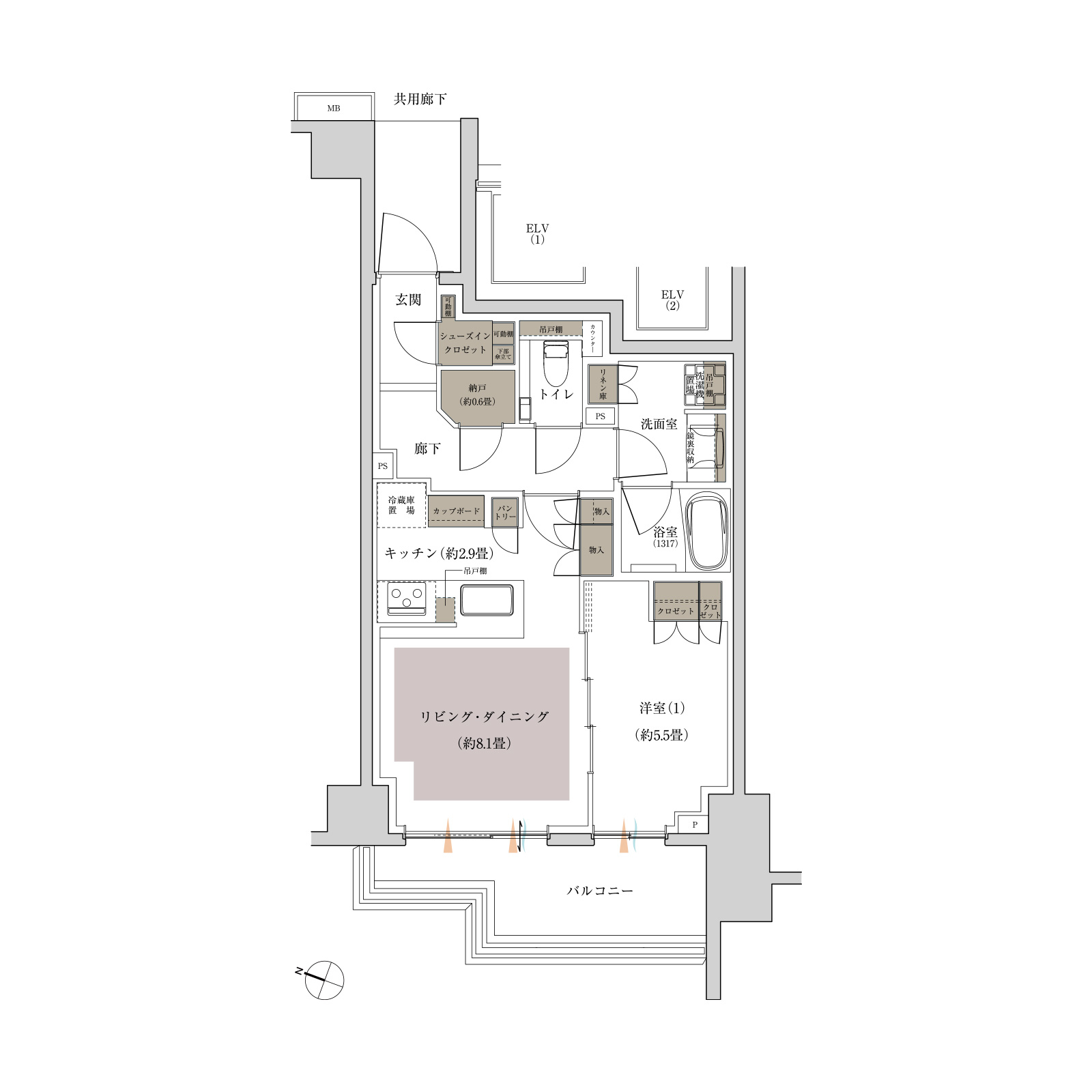
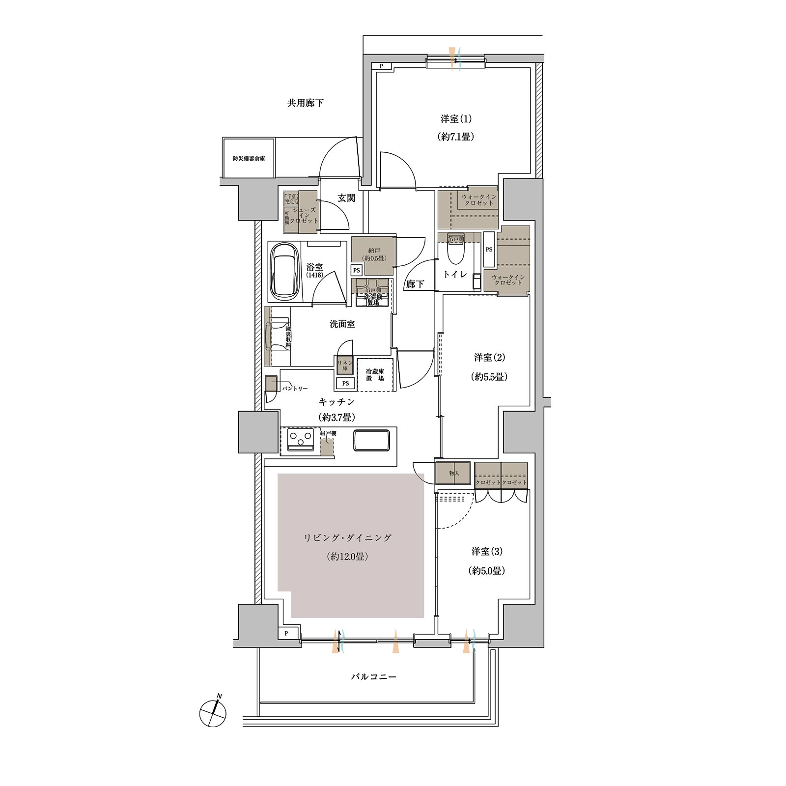
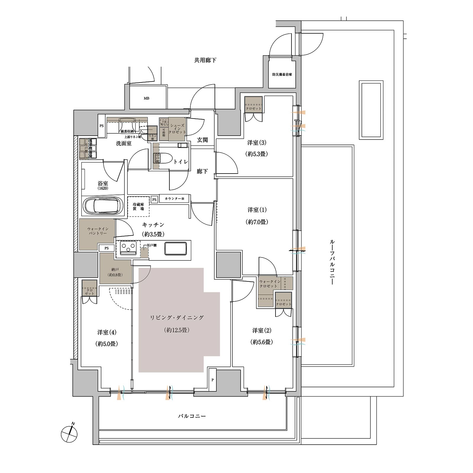
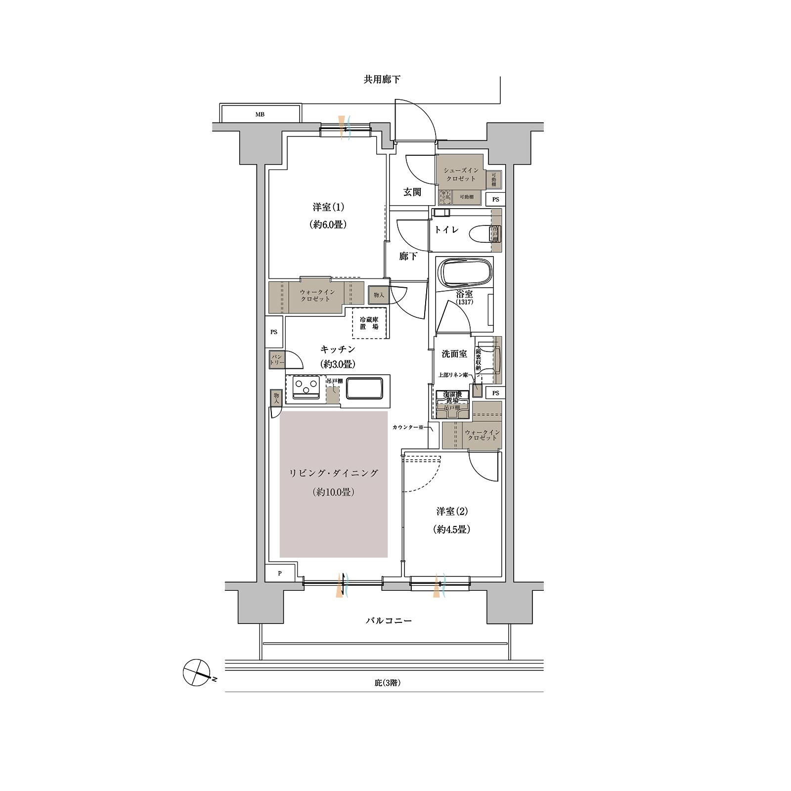
1LDK〜4LDKまで幅広いプランをご用意。
快適な暮らしと多様なライフスタイルにフィットするプランバリエーション。
間取り条件絞り込み
※掲載の間取図は、計画段階の図面を基に描き起こしたもので施工上の都合等により変更が生じる場合があります。最新の図面集でご確認ください。
※掲載のタイプ配置概念図は、計画段階の図面を基に描き起こした図版に住戸タイプの位置を示したもので、実際と異なることや変更する場合があります。
断熱性能等を向上、共用部を含むマンション全体で
一次エネルギー消費量を20%以上削減しています。
BELS(ベルス)とは、建築物省エネ法(建築物のエネルギー消費性能向上に関する法律)の、
省エネ性能表示の努力義務に対応した住宅・建築物を、
省エネ性能で格付けする唯一の第三者認証制度です。
本物件は共用部を含む住棟全体でZEH-M Orientedの基準を満たすBELSを取得しており、
エネルギー消費性能レベル4、断熱性能レベル5のZEH水準を満たしています。
※掲載の「省エネ性能ラベル」は、住棟全体の性能を示すものであり、
各住戸の性能を示すものではありません。
225組の入居者様アンケート結果発表
ZEHマンションは断熱性と
省エネが評価されています
住み心地で一番改善されたのが「部屋ごとの温度が変わらない」点。
他にも省エネ、光熱費削減などの効果を実感したと回答された方も。
ZEHマンションを
ポジティブにとらえた方が約8割!
一度住んでみたら分かる、ZEHマンションの魅力は次の住み替え時にも
外せない要素と回答した方が多数いらっしゃいます。

※1.「Brillia Tower 聖蹟桜ヶ丘 BLOOMING RESIDENCE」の入居者様(n=225)へ 2024 年11月に実施したアンケートにおいて、68.0%の方が、ZEHマンションであることが購入動機になったと回答
※掲載のアンケートは「Brillia Tower 聖蹟桜ヶ丘 BLOOMING RESIDENCE」の入居者様(n=225)へ2024年11月に実施したものです。なお、掲載されているグラフは四捨五入の関係上、合計しても100%にならない場合があります。
一次エネルギー
消費量等級6(取得予定)
断熱等性能等級5(取得予定)
ガス温水床暖房
Low-E複層ガラス
本物件では、「低炭素建築物」の
認定を取得しています。
環境への配慮によって、住宅ローン減税など
さまざまな優遇を受けることができます。
環境と家計にやさしい暮らしを叶える
『低炭素建築物認定マンション』とは?
断熱性能の向上に加え、高効率設備などの採用により、ZEH水準相当の省エネルギー性能に加え、太陽光パネルなどの再生可能エネルギー利用設備を設置。さらに、節水機器の採用などにより、省エネ性が高く人と環境にやさしい住空間を実現します。
※本項目は住宅・住戸の性能を表記したもので、住宅ローン控除等の税制や各種補助金等の制度の適用を説明するものではありません。
税制等の適用には入居年等の要件があります。詳細は税務署等にご確認ください。
建物一覧図